Waarom dit uw ideale nieuwe thuis is
- Licht & Ruimte: Geniet elke dag van een indrukwekkend panoramisch uitzicht. Door de grote raampartijen baadt het hele appartement in het natuurlijk daglicht.
- Uniek Terras (20 m²): Een terras over de volledige breedte! Ideaal voor gezellige zomeravonden, een veilige speelplek voor de kinderen of uw eigen stadstuin in de hoogte.
- Extreem Energiezuinig (EPC 101/ Label B): Dankzij de nieuwe PVC-ramen met driedubbel glas en de recente verwarmingsketel bespaart u honderden euro's per jaar op uw energiefactuur. Bonus: u krijgt mogelijk een mooie korting op uw hypothecaire lening!
- 100% Veilig & Conform: De elektriciteit is volledig vernieuwd en goedgekeurd. Geen extra kosten of zorgen na de aankoop.
- Toplocatie voor Gezinnen:
- Groen voor de deur: Valaarpark en Marmotteke liggen letterlijk aan de overkant. Ideaal voor wandelingen en spelende kinderen.
- Alles dichtbij: Scholen, supermarkten en openbaar vervoer op wandelafstand.
- Perfecte verbinding: U bent zo op de Bist, in Antwerpen-centrum of op de belangrijke invalswegen (A12, E19, E17, E34).
- Modern Comfort: Supersnel internet via glasvezel (Proximus/Telenet) – ideaal voor thuiswerk of streaming. Het gebouw zelf wordt wekelijks piekfijn onderhouden.
- Afgesloten kinderwagen en fietsenstalling in het gebouw aanwezig.
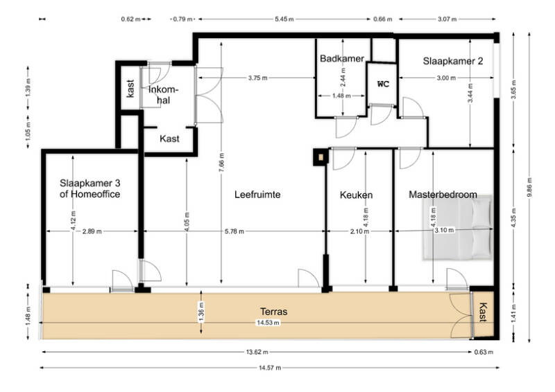
Kenmerken van het appartement
Het appartement beschikt over een ruime woonkamer, een functionele keuken, 3 comfortabele slaapkamers, veel bergruimte en een prachtig uitzicht. De royale ruimte en de slimme indeling maken dit appartement tot de perfecte plek om te wonen.
Indeling
- Inkomhal met ingebouwde kasten die als vestiaire dienst doet en schoenenberging met zolderkast.
- Ruime woonkamer en eetruimte (ca. 40 m²) op blokjesparket, met muur-tot-muur ramen en directe toegang tot het terras.
- Volledig ingerichte keuken met koelkast/diepvries combinatie, afwasmachine, gasvuur, elektrische oven en microgolf.
- 3 volwaardige slaapkamers (ca. 14 m², 13 m² en 11 m²) – ideaal voor gezin, extra logeerkamer of home office.
- Badkamer met instapdouche en lavabomeubel, en apart toilet
- Handige zolderberging boven de gang.
- 2 grote privatieve kelders inbegrepen.
- Staanplaats in de ondergrondse garage verplicht mee aan te kopen aan 15.000€
Zeer ruime woonkamer
Geniet van een uitzonderlijk grote woonkamer (40 m²) met plaats voor een grote eettafel en een full size salon met multimedia/TV hoek. Perfect voor ontspanning en entertainment. De living heeft een mooi blokjesparket.
Vanuit de living heeft men toegang tot het grote terras 20 m² waar plaats is voor zitbank of een tafeltje om in de zomer buiten te eten of te aperitieven.
Alle ramen hebben vliegenramen en raamdecoratie op maat.
Functionele keuken
De volledig uitgeruste keuken heeft een nieuwe koelkast met 3 diepvries schuiven, dubbele spoelbak, afwasmachine, ingebouwde microgolf en gasvuur met oven. Aansluiting voor een wasmachine en eventueel een elektrisch vuur i.p.v. gas zijn reeds voorzien. In de keuken is er ruimschoots plaats voor al je keukengerei en een grote voorraad dankzij de vele kasten. De gemeenschappelijke muur met de living kan eventueel later verwijderd worden.
3 grote comfortabele slaapkamers
De slaapkamers zijn ontworpen voor comfort en rust, met voldoende ruimte en veel natuurlijk licht. 3 volwaardige slaapkamers (ca. 14 m², 13 m² en 11 m²) die ieder groot genoeg zijn om een dubbel bed en kleerkast te plaatsen. Twee van de slaapkamers hebben directe toegang tot het terras. De slaapkamer naast de living kan ook dienst doen als home office waar plaats is voor 2 ruime bureaus.
De twee grootste slaapkamers hebben blokjesparket, de derde heeft een vinyl vloerbedekking.
Badkamer met douche en aparte WC
De badkamer is klein maar functioneel. Momenteel is er een badkamermeubel met 1 wastafel en een instapdouche. De badkamer is steeds lekker warm via de CV. De WC is apart van de badkamer.

De groene omgeving en mobiliteit
De Rooiboslaan is gelegen in een rustige en groene buurt. Recht tegenover de deur bevinden zich twee parken: het Valaarpark en het Marmotteke met speeltuin.
Dankzij de centrale ligging heeft het appartement een uitstekende mobiscore van 8,8. Op wandelafstand vind je een grote Delhaize en Carrefour. Met de wagen bereik je Colruyt en Albert Heijn in ongeveer 5 minuten.
Het centrum van Wilrijk en de Bist liggen eveneens op wandelafstand. Scholen en openbaar vervoer bevinden zich in de nabije omgeving, wat deze locatie bijzonder aangenaam en praktisch maakt.
Verder geniet het appartement van een vlotte bereikbaarheid naar Antwerpen-centrum, zowel met de bus (lijnen 22, 33 en 50) als met de tram (lijn 2). Ook met de fiets is de verbinding ideaal, dankzij een Velo-station op de hoek.
Daarnaast is er een uitstekende aansluiting op de invalswegen A12 en E19 richting Brussel, en E17 en E34 richting Gent.
Kortom, een ideale locatie voor een comfortabel en zorgeloos leven.
Documenten
Adres
Rooiboslaan 55, 11J
2610 Wilrijk, Antwerpen